Pia (66380)

Terrain

299 m²
99 000 €
Réf 210

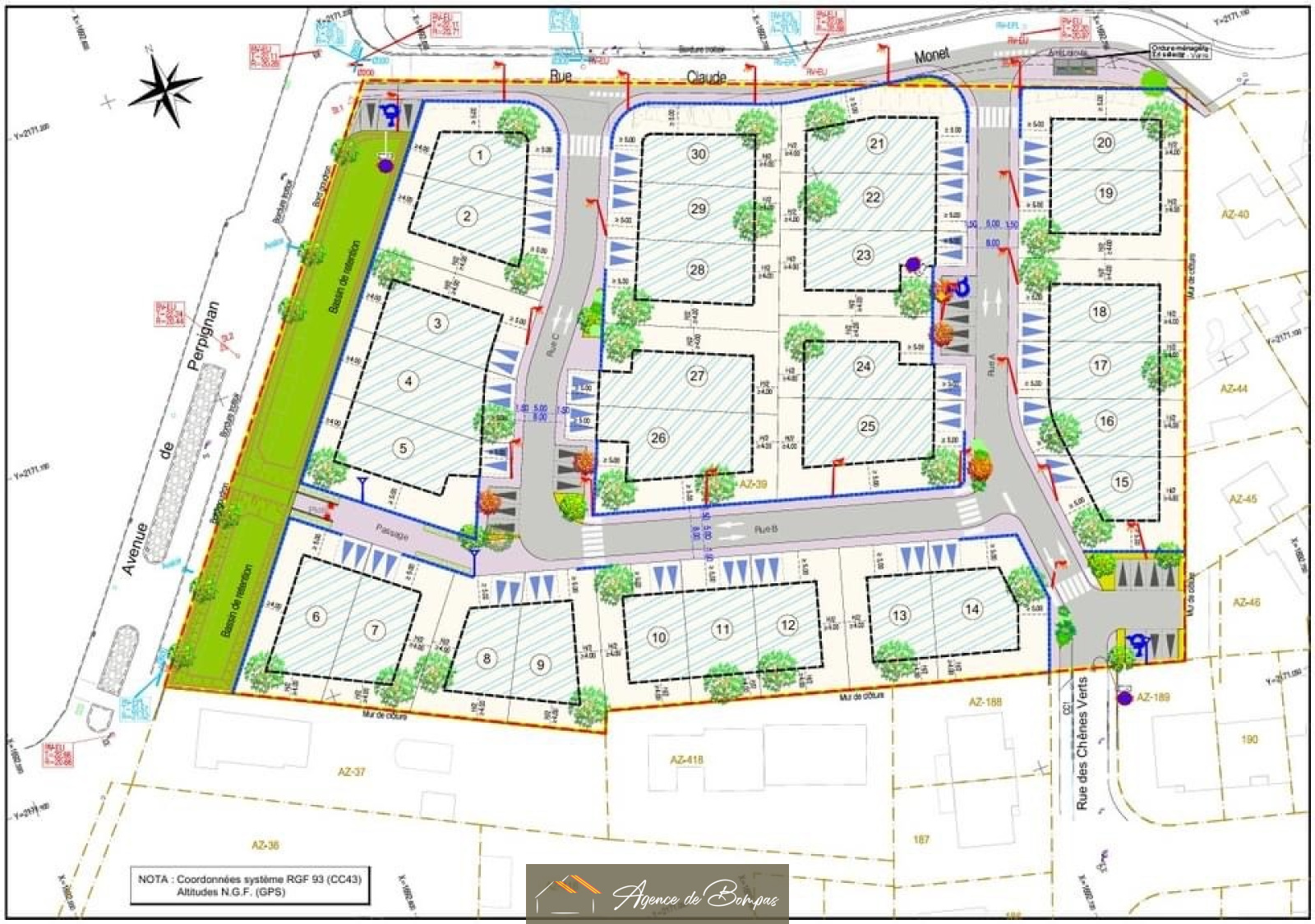
IL NE RESTE QUE 11 PARCELLES - PARCELLE DE 299 M2 EN 3 FACES 99 000 EUROS /

10 PARCELLES EN 3 FACES ET 1 EN 2 FACES

LOTISSEMENTS DE 30 PARCELLES -TERRAINS A BATIR -LIVRAISON JUIN 2025

LOTISSEMENT LE STANDING SITUE RUE CLAUDE MONET 66380 PIA

IL RESTE 11 PARCELLES DISPONIBLES -

PARCELLES DE TYPE 2 ET 3 FACES - ENTRE 299 M2 A 472 M2

POUR TOUT RENSEIGNEMENTS DISPONIBILITES ET PRIX MERCI DE ME CONTACTER DIRECTEMENT PAR MAIL

PROCHE TOUTES COMMODITES

Bilan énergétique

Diagnostics énergetiques
A propos de ce bien Caractéristiques de ce bien
  • terrain 299 m²

Financier

Informations financières
Prix de vente 99 000 € Les honoraires d'agence seront intégralement à la charge du vendeur

Autour du bien

Découvrez le quartier

Simulation

Calcul des mensualités
* Champs obligatoires
Agence de Bompas Agence